笠原町セラタウウンにて中古建て住宅を販売します。
多治見市笠原町セラタウンにて中古住宅を売り出します。
1階:2LDK+玄関+風呂+トイレ+サニタリー
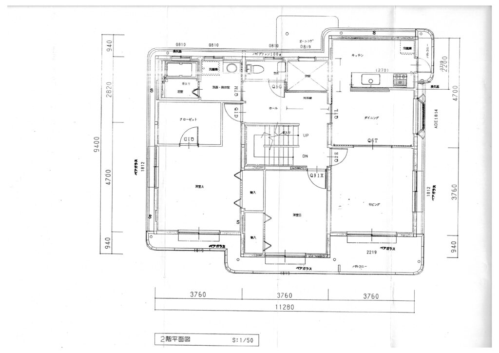
2階:2LDK+玄関+風呂+トイレ+サニタリー
3階:1S
屋上:陸屋根テラス×2
駐車場:2台分
何なりと気軽にお問い合わせください。現地案内もいたします。
価格:1,890万円
建築面積:96.33㎡
延べ面積:210.35㎡
敷地面積:302.19㎡(公簿)
建物構造:RC造3階建て
取引態様:媒介






配布申込みシステム-15-1024x724.jpg)















多治見市笠原町セラタウンにて中古住宅を売り出します。
1階:2LDK+玄関+風呂+トイレ+サニタリー
2階:2LDK+玄関+風呂+トイレ+サニタリー
3階:1S
屋上:陸屋根テラス×2
駐車場:2台分
何なりと気軽にお問い合わせください。現地案内もいたします。
価格:1,890万円
建築面積:96.33㎡
延べ面積:210.35㎡
敷地面積:302.19㎡(公簿)
建物構造:RC造3階建て
取引態様:媒介






配布申込みシステム-15-1024x724.jpg)














