土岐市区画整理土地:③_38街区6画地
土岐市妻木南部土地区画整理の敷地を新しく仲介します。
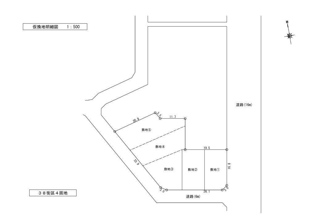
価格:3,890万円(敷地を分割して売買することも可能です。)
分割例:①380㎡・1360万円、②230㎡・770万円、③300㎡・990万円、④230㎡・770万円)
清閑な地でありながら、病院、スーパー、コンビニエンスストア、小学校が車で数分の圏内であり、交通網は東海環状自動車道土岐南多治見IC(約5km、車で約11分)やJR土岐市駅となります。土岐明智氏ゆかりの歴史ある地であり、毎年10月には。流鏑馬が行われます。

















所在地:土岐市妻木町
土地権利:所有権、建築条件なし
都市計画:区域区分非設定、用途地域:2種住居、建ぺい率:60%、容積率:200%、住宅用地
地目:田(5条農地転用申請により宅地に地目変更後の引き渡し)
現況:更地、引き渡し時期:即時、現況渡し
接道状況:東16.0m 公道 接面15.8m 南6.0m 公道 接面26.1m 南西6.0m 公道 接面33.9m
設備:プロパンガス、電気、上水道(引込工事費用及び分担金別途必要)、下水道 (受益者負担金及び分担金別途必要)
土岐妻木南部土地区画整理仮換地
建設時、土地区画整理法第76条申請要
換地処分後に本登記
※客付会社への報酬はありません 。


